Réfection complète d'une ancienne grande sur le domaine du Château de XXXXXX:
Réouverture de l'ensemble des ouvertures existantes + rajouts de certaines en pignons. Recalage des ouverture pour donner un rythme régulier de façade.
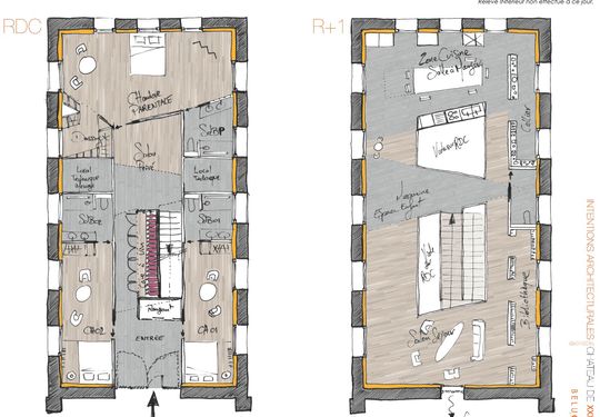
Aménagement complet de l'intérieur:
* 2 niveaux: RDC > espace nuit / R+1 > espace vie
* jeux de percées visuelles entre les deux niveaux
* scénographie intérieure
